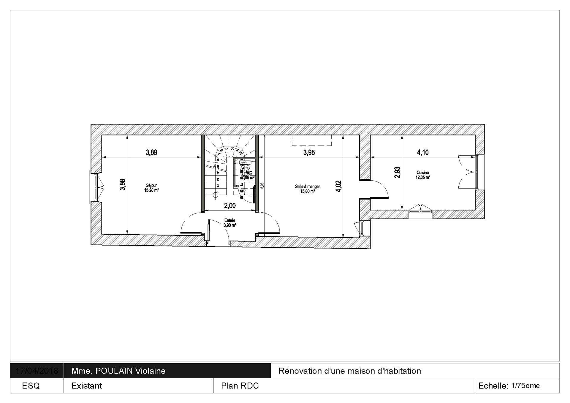
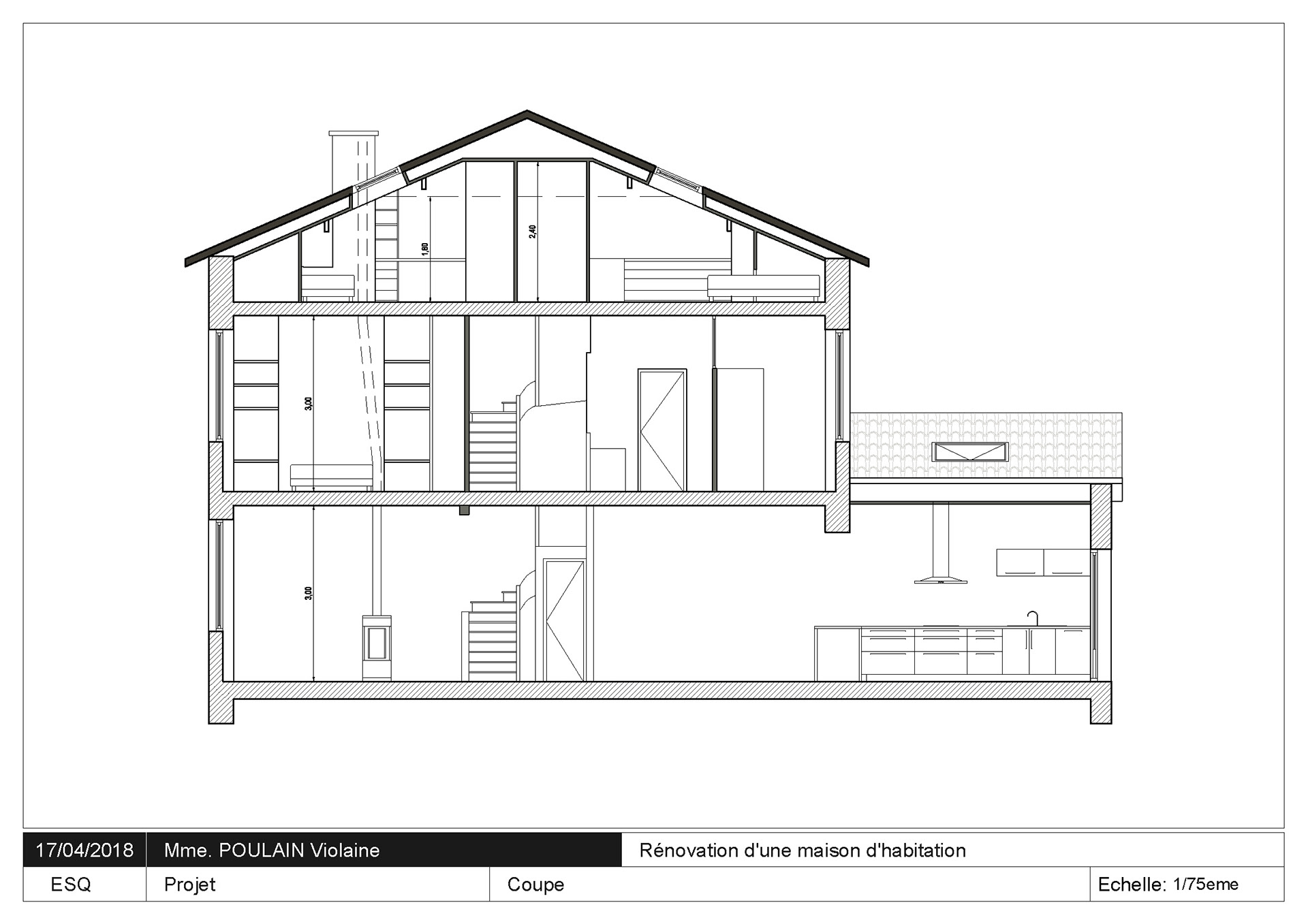
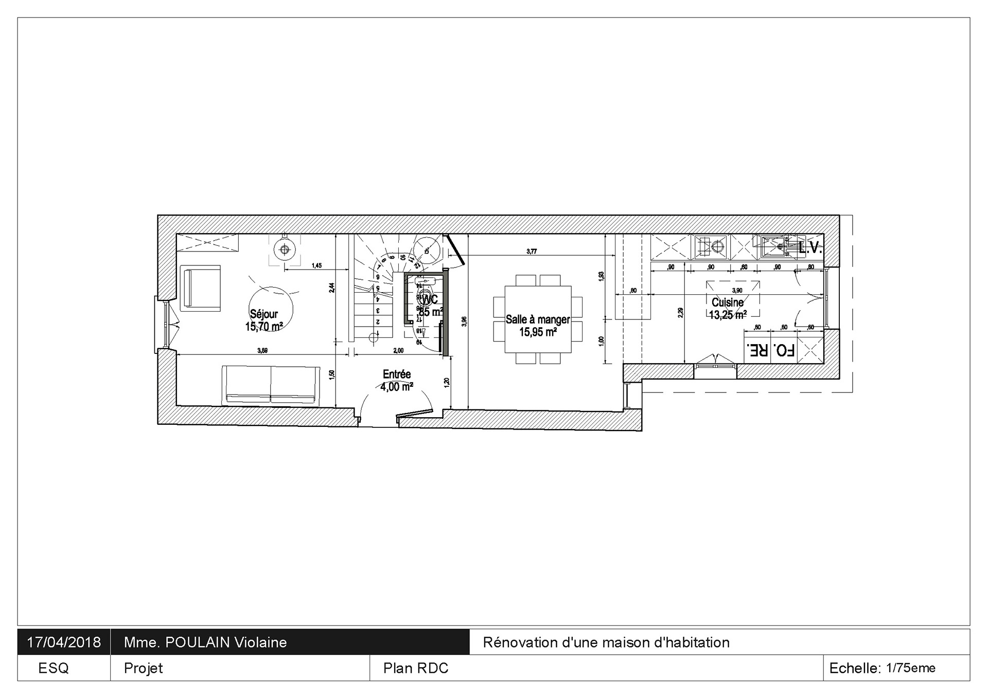
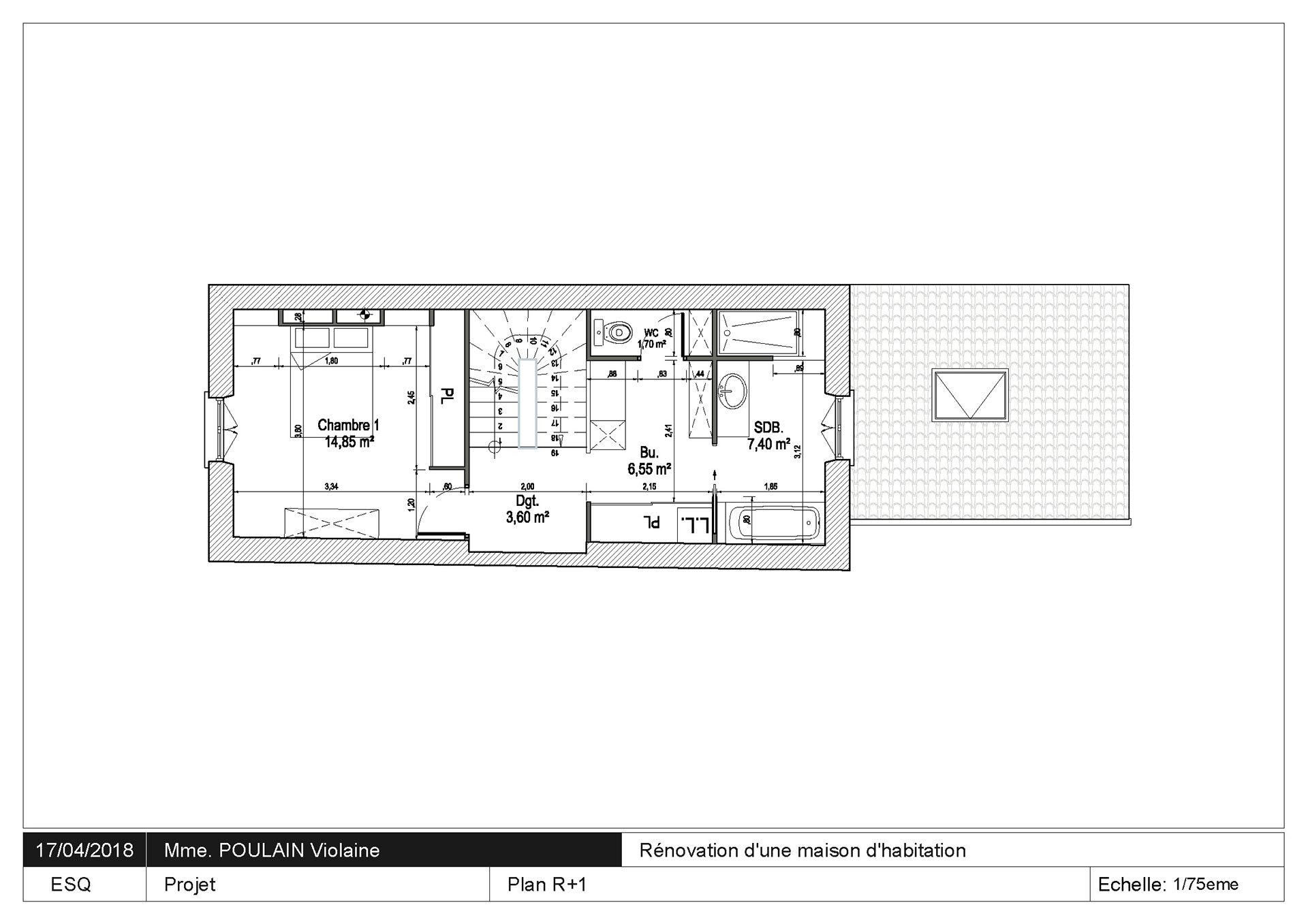
Proposition d'aménagement pour la rénovation d'une maison individuelle.
Ce site utilise des cookies Accepter Refuser